Pular para o conteúdo

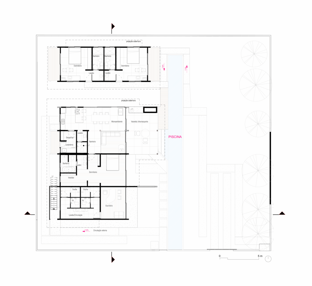
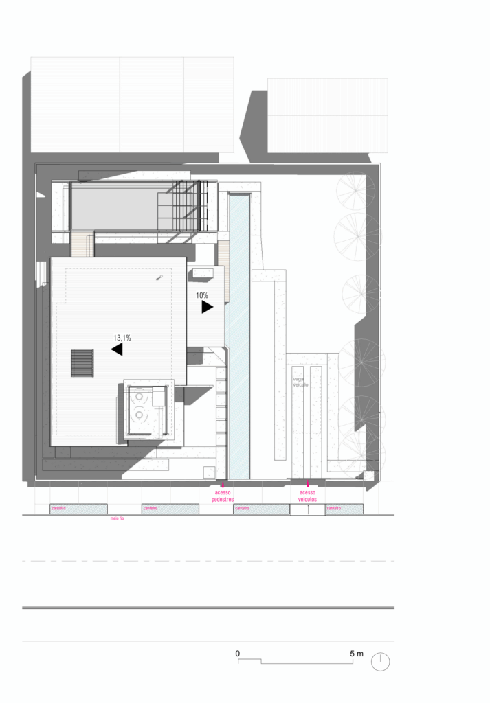
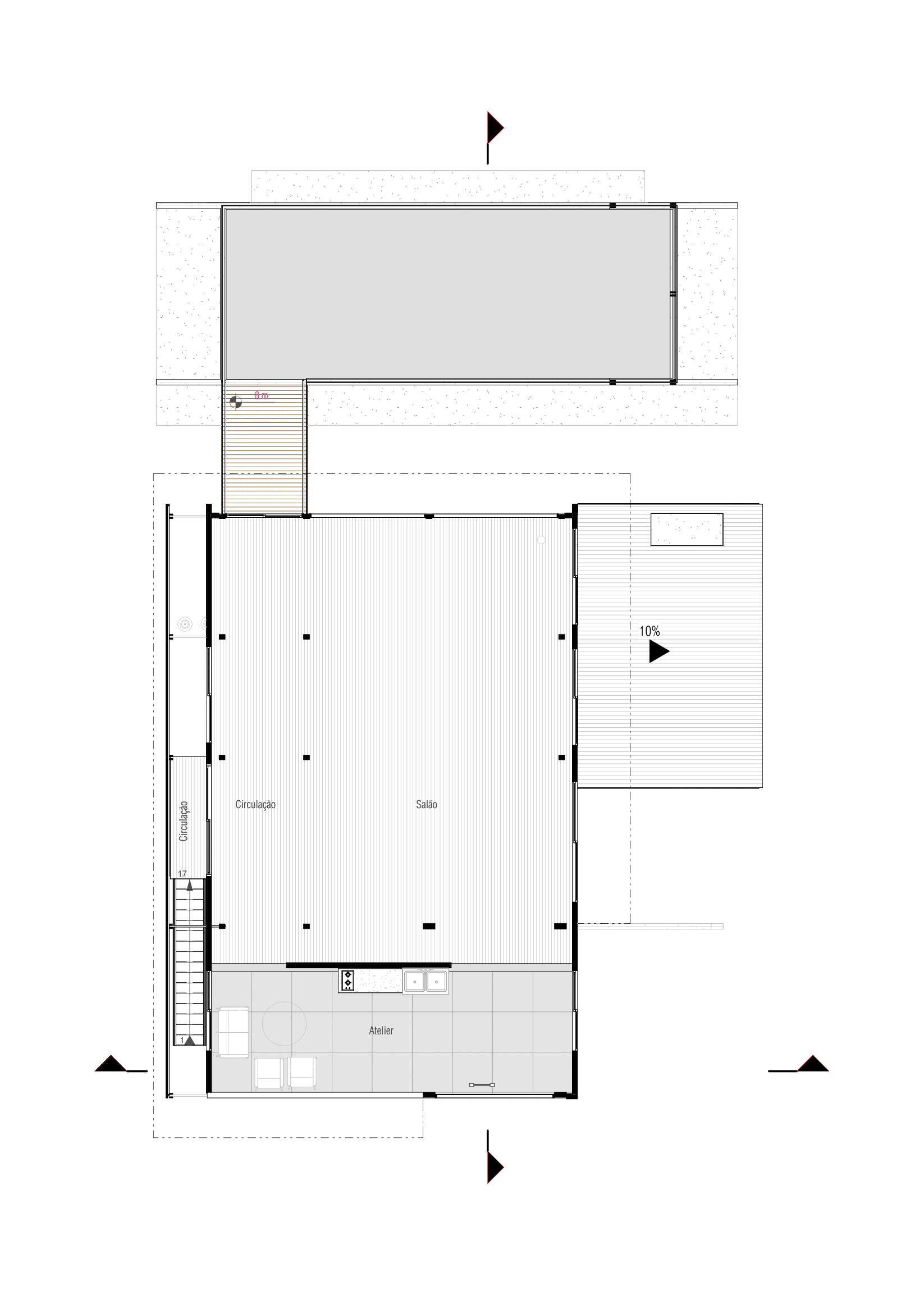
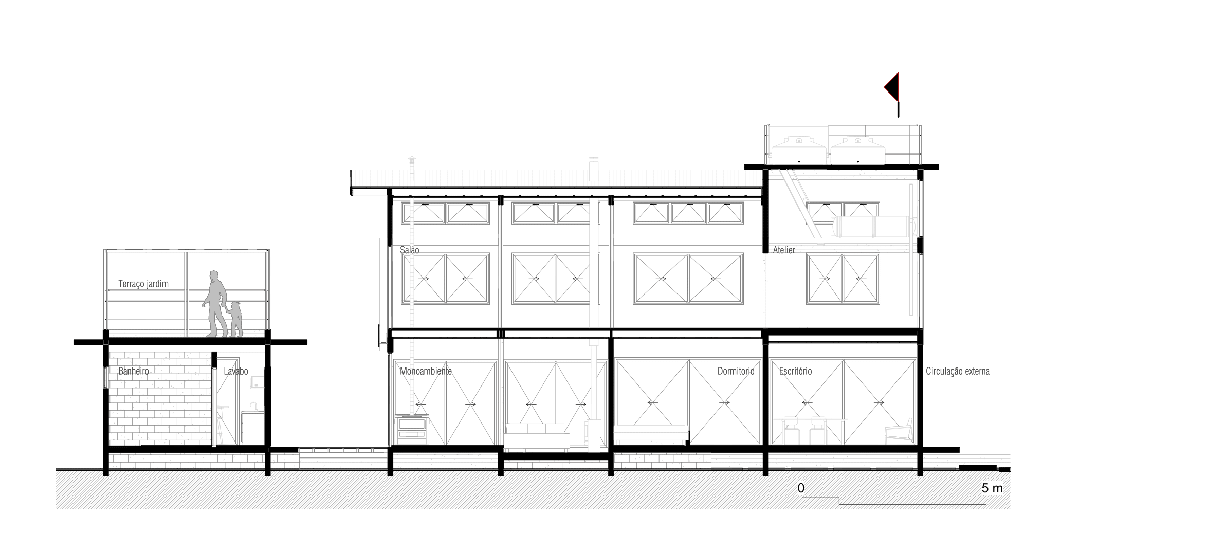
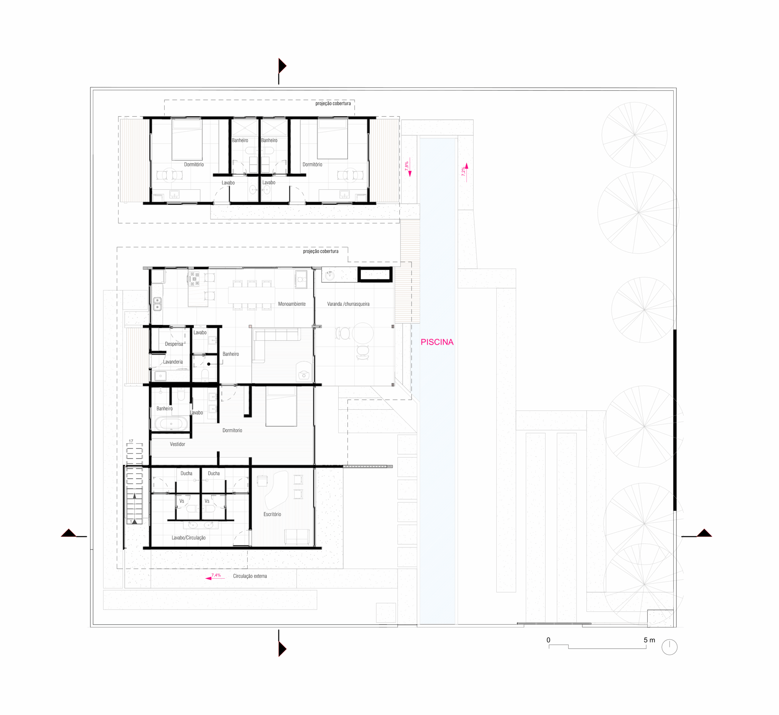
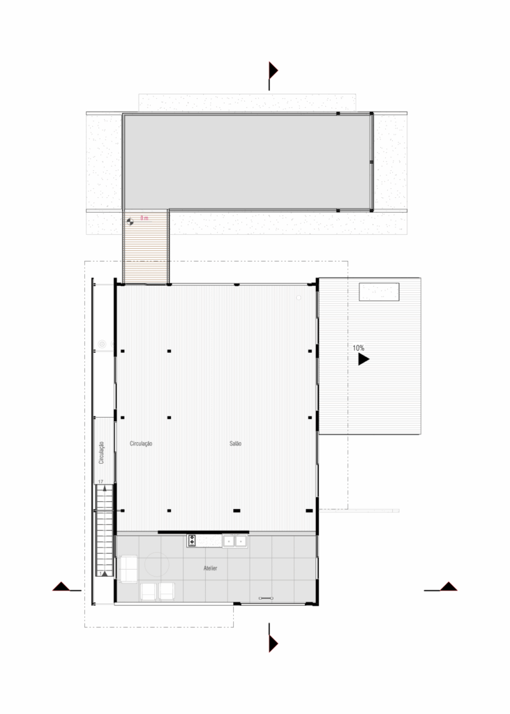
Edificação de uso misto, residencial e centro terapêutico do esporte e saude.

Estrutura mista de concreto armado, bloco de alvenaria estrutural cimenticio e madeira.

Localizada no Bairro do Rio Vermelho, Florianópolis, SC | Brasil.

Ano do projeto 2020

Ano da execução 2021

Equipe Responsavel peloplanejamento e gestão da execução Belbauen.