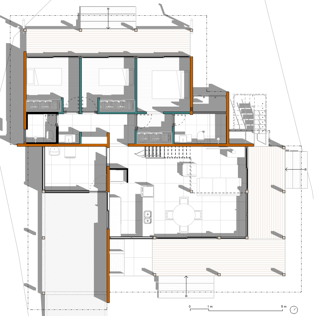
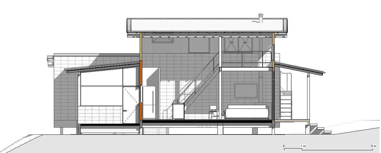
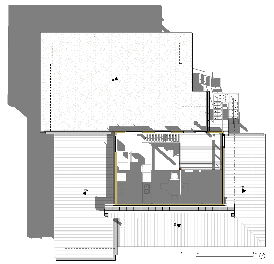
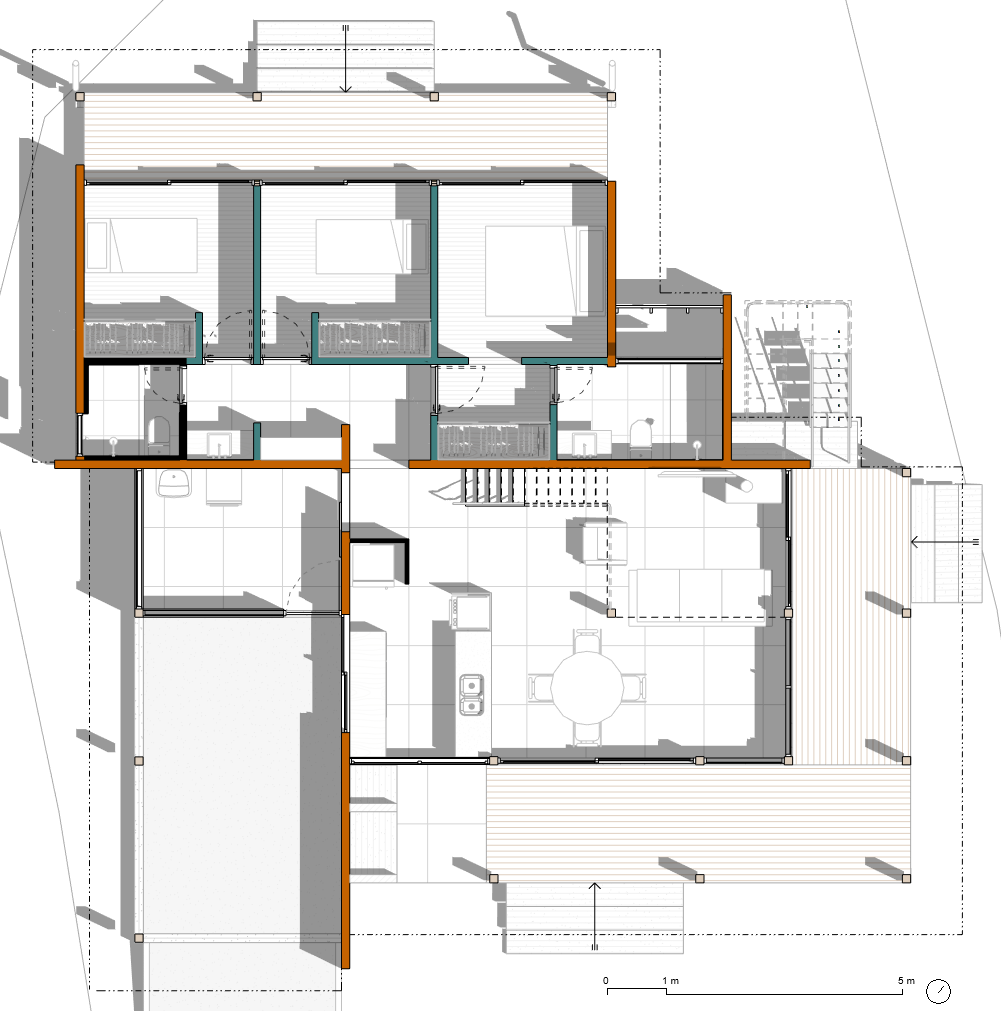
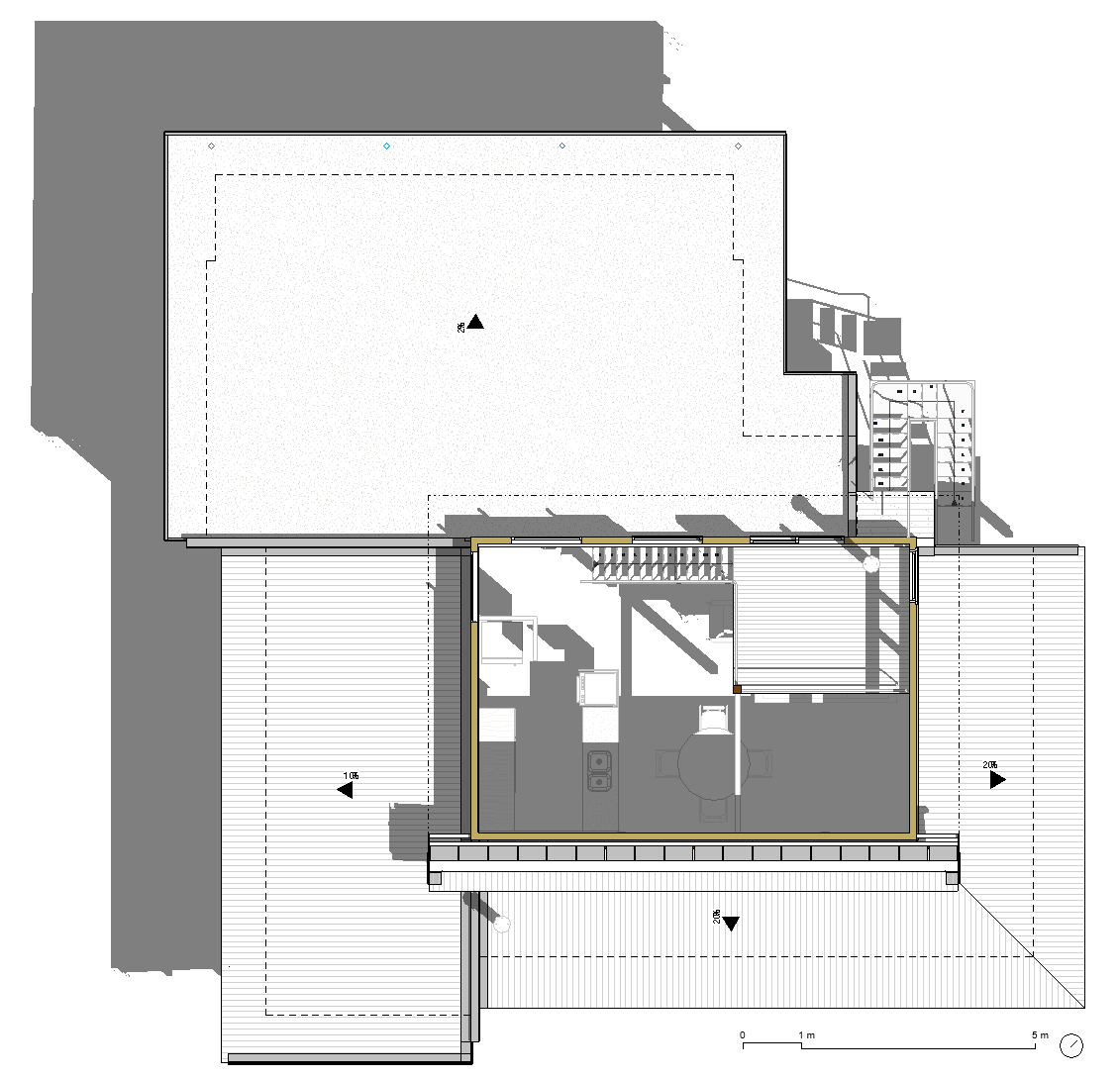
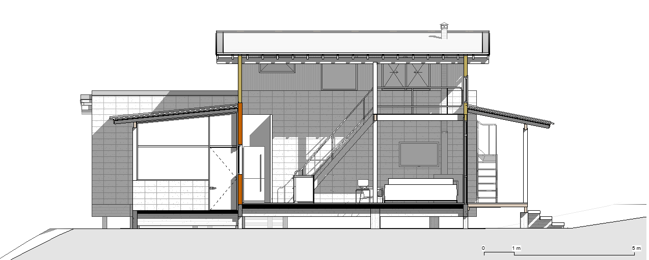
Edificação Unifailiar | Florianópolis – Vargem Grande| SC | BR
Estrutura mista – madeira e bloco ceramico estrutural
Sistema plataforma madeira (woodframe)